Add On’s & Upgrades
Pool Add-Ons, Upgrades & Water Features for Evans, Augusta, Aiken, Lexington, Columbia & Surrounding Areas
At Pete Alewine Pool Company, we believe a pool should be more than just a place to swim, it should be a place to gather, make memories, and unwind from everyday life. That’s why we offer a variety of custom water features, from spas and waterfalls to fire bowls and more. Serving the CSRA and the Midlands, our experienced team designs and installs features that add beauty, relaxation, and enjoyment to your pool. Browse the options below to find the perfect additions for your pool.

Deck Jets
Deck jets add sleek streams of water from your deck into the pool, creating elegance and fun. Install them in single spots or clusters for a dynamic effect. With the option to
illuminate, deck jets enhance the atmosphere day or night while keeping the design clean and sophisticated.

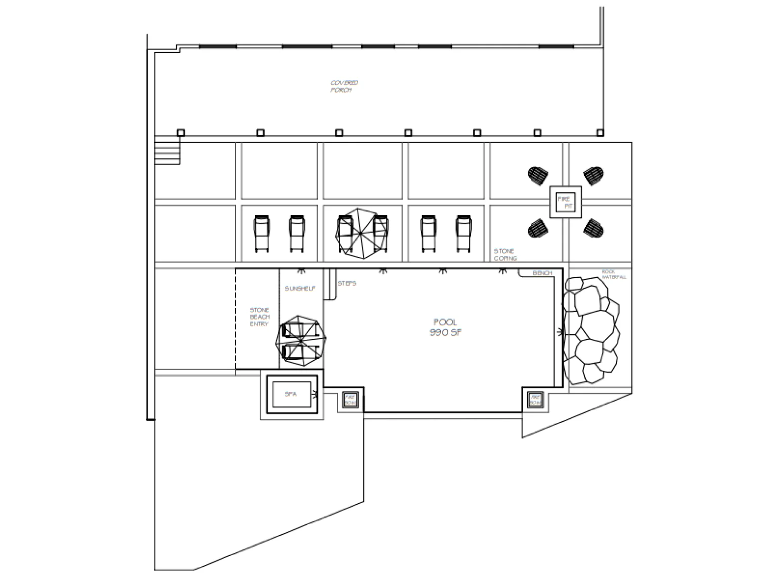
Rock Waterfalls
If you’re looking to add a natural, rustic element to your pool, a rock waterfall is the perfect option. Our rock waterfalls are custom-designed to mimic the look of real, natural falls, with
water gently tumbling over rocks into the pool below, creating a soothing, tranquil sound.

Spas
A spa is the perfect addition to any pool, bringing comfort, luxury, and relaxation to your outdoor space. At Pete Alewine Pool Company, we offer deck-level and raised shotcrete
spas, raised fiberglass spas, and the option to incorporate hot tubs from our retail stores into any vinyl liner, fiberglass, or shotcrete/concrete pool. With customizable features such as jets, seating, lighting, and spillover effects, we’ll design a spa that complements your pool and fits seamlessly with your lifestyle.

Beach Entry
A beach entry is a stunning feature that gives your pool the look and feel of a natural shoreline. Instead of traditional steps, the pool gradually slopes from the deck into the
water, making it easy to enter and perfect for lounging or for young children. At Pete Alewine Pool Company, we can design a beach entry to complement fiberglass or shotcrete/concrete pools.

Infinity Edge
An infinity edge creates the illusion that your pool extends endlessly into the horizon, offering a dramatic and luxurious focal point. This feature allows water to flow seamlessly
over one edge into a hidden basin, giving your pool a mirror-like effect that blends beautifully with its surroundings. An infinity edge is a premium feature offered solely on shotcrete/concrete pools.

Swimout
A swimout is a built-in ledge or bench inside your Vinyl Liner pool that provides the perfect spot to rest, relax, or enjoy the water without fully swimming. Often placed in the
deep end, swimouts offer both safety and convenience by giving swimmers a place to pause.

Water Features
Water features, such as scuppers or sheet flows, create a smooth stream of water that flows gently into your pool. These features add both movement and sound, ranging from a soft trickle to a
dramatic sheet of water, depending on the design. At Pete Alewine Pool Company, we offer a variety of sizes and finishes so your water features can serve as a subtle accent or a bold focal point, perfectly tailored to your pool.

Water Bowls
These versatile bowls enhance the look of your pool while adding the calming effect of running water. Often placed on pedestals, such as columns or walls, they bring an architectural design
element to your outdoor space. With a variety of finishes, shapes, and sizes available, water bowls can be customized to fit your style. For a dramatic effect, they can even be combined with fire to create a stunning fire/water bowl.

Sun Shelves
A sun shelf, also called a tanning ledge, is the perfect shallow area in your pool to relax and soak up the sun. Ideal for lounging in a chair or letting kids safely splash around, these ledges
combine function and style. At Pete Alewine Pool Company, we can design sun shelves into shotcrete/concrete pools, while select fiberglass models come with them built in.

Spillovers
A spillover is a beautiful feature that is often added to a raised spa that allows water to flow gently into the pool, creating both movement and soothing sound. This design
not only enhances the look of your pool but also helps with circulation by keeping water moving between the spa and pool. For a more dramatic affect, a spillover wall can be designed and built as the ultimate statement piece to your pool project.

Bubblers
Bubblers bring playful movement and soothing sound to your pool. These small jets create an upward movement of water and bubbles that both kids and adults enjoy, while
optional lighting adds a stunning visual effect at night.

Fire Features
Add warmth and ambiance to your outdoor living space and pool with custom fire features. From fire bowls to fire troughs and fire pits, these elements create a cozy focal
point around your pool area. For a truly unique look, we can even design dramatic fire-in-water effects within the pool itself. Fire features can also be paired with select water elements, creating a striking balance of fire and water that enhances the beauty of your design.

Grotto
A grotto adds a dramatic, natural touch to your pool, creating a private cave-like space often tucked behind a rock waterfall. Grottos can be designed for swimming through,
sitting under, or even with built-in seating, making them a fun and relaxing retreat for both kids and adults. At Pete Alewine Pool Company, we’ve even built grottos that feature a spa on top, combining relaxation and adventure in one stunning design. With custom lighting and water features, a grotto transforms your pool into a true backyard escape.

Diving Boards
At Pete Alewine Pool Company, our Vinyl Pool Packages come with a durable U-Frame Diving Board, while our Shotcrete/ Concrete Pool Packages feature the sleek 8’
Flyte Deck Diving Board. Both options are built for Safety, performance, and long-lasting enjoyment, giving your pool an extra element of play. *Select Fiberglass Pools are diving board rated.

Handrails
Handrails provide both safety and style, making it easier and more secure to enter and exit your pool. At Pete Alewine Company, we offer high-quality
stainless steel or powder-coated handrails that not only perform reliably but also complement the look of your pool. Designed for durability and comfort, they’re a functional feature that adds peace of mind without sacrificing aesthetics.

Retaining Walls
If needed due to the position of your pool or the design of your outdoor area, retaining walls serve a purpose while being seamlessly integrated into your overall design. At Pete Alewine
Pool Company, we design and build custom retaining walls from split-face block, travertine, stone or brick to complement your home and pool.

Coping Options
Coping is the finishing edge around your pool that adds both protection and style. At Pete Alewine Pool Company, we offer a variety of coping options; including flagstone,
travertine, brick, pre-cast and more. (*Aluminum coping comes standard on a Vinyl Liner pool package.) The design team will help you choose the perfect option for your pool to compliment the overall design.

Automatic Safety Covers
Automatic pool covers add safety, convenience, and efficiency to your pool. With the touch of a button, you can quickly cover or uncover your pool, helping to keep out debris, reduce
evaporation, and maintain water temperature. We install durable, custom-fit automatic covers designed to protect your investment and make pool ownership easier.

Umbrella Sleeves
Built-in umbrella sleeves add shade and comfort right where you need it. Installed directly into your pool’s beach entry, sun shelf, or deck, these sleeves let you securely place umbrellas
without bulky stands.

Lights
From a single light to multiple, the possibilities are endless. Whether you’re hosting a party or enjoying a quiet evening swim, our LED lights create the perfect atmosphere every time.

Jump Rocks
Jump rocks offer a natural, adventurous alternative to diving boards. We can seamlessly incorporate them into Vinyl Liner Pools, Select Fiberglass Diving Pools, and
Shotcrete/Concrete Pools, ensuring proper depth and safe placement. *Size & depth restrictions apply to all pools.

Heaters
Extend your swimming season with a pool heating system tailored to your needs.
At Pete Alewine Pool Company, we offer both LP and natural gas heaters for quick, efficient heating, as well as electric heat pumps for steady, energy-efficient temperature control. Whether you want warm water year-round or just a little extra comfort in cooler months, we’ll help you choose the best option for your pool and lifestyle.

Chillers
A pool chiller keeps your water cool and refreshing during the hottest months of the year. At Pete Alewine Pool & Spa, we
offer efficient, reliable chiller systems designed to keep your pool enjoyable all summer long.

Heat Pump/Chiller Combo
A heat pump and chiller combo gives you the best of both worlds, warming your pool in cooler months and cooling it down
during the peak of summer. This all-in-one system keeps your water at the perfect temperature year-round!
Check Out Our Design Plans!




Pricing for Add-Ons, Upgrades, and Water Features for Vinyl, Fiberglass and Shotcrete/Concrete Pools
Pricing, specifications, standard equipment and options are subject to change without notice, while supplies last.
Concrete Deck Options
| Per Square Ft. | ||
| Spray Decking | This makes the surface slip resistant and feel cooler to the touch. Offered in many colors. | $6.85 |
| Extra Concrete | Not always needed but we will design your pool deck how you imagine it. | $6.75 |
| Add Buff Color to Concrete | Helps tie the concrete into the existing handscape and looks great with Flagstone. | $4.50 |
| Salt Pit Finish | Gives a smooth, subtle texture and skid resistance to plain or colored concrete. | $2.00 |
| Per Linear Ft. | ||
| Concrete Scoring | Use the concrete scoring lines to make a design that is your own. | $6.85 |
| Brick Expansion Joint | A great addition to brick coping, these will make you pool deck really stand out. | $49.00 |
| Stone Expansion Joint | Perfect with stone coping, these will give your pool deck a signature look. | $63.00 |
| Travertine Expansion Joint | Travertine is a natural stone, with the addition of travertine expansion joints you can add distinctive character to your pool deck design. | $83.00 |
Other Available Options
| Extra White Light (One is Already Included) | $1,500 | Waterfall | $7,500+ |
| LED Color Changing Light (Replaces Incl. White Light) | $1,200 | Deck Jet/Bubblers (Ea.) | $600 |
| Additional LED Color Changing Light (Various Models) | $1,345 – $1,800 | Umbrella Sleeve (Ea.) *Umbrella not included. | $50 |
| Automatic Pool Covers | Starting at $20,000 | Stainless Steel Hand Rail | $700 |
| App Based Pool Control | $1,700 | Power Coated Hand Rail | $950 |
| Jump Rock | $3,500+ | Premium Corded or Cordless Automated Cleaner | $1,000 – $3,000 |
| Chiller | $8,000* | Heat Pump/Chiller Combo | $13,250* |
| Heater (Gas) 400k BTU’s | $6,300* | Heat Pump | $9,000* |
*Does not include the cost to run the gas line and /or electrical if required
Site Specific Items
| Well Point (Req. if Water Inhibits Excavation) | $1,000 | Stump & Debris Removal (Per load) | $850 |
| Fill Dirt (Per load) | $400 | Dirt Removal (Per load) | $400 |
| Pumping of Concrete (For Limited Access) | $1,500 | Retaining Walls | Price varies per project |
| Drainage, Running Out Downspouts, etc. | Price varies per project |